Beat365中文官方网站内部控制管理制度 ——预算指标批复篇
Beat365中文官方网站内部控制管理制度
——预算指标批复篇
1.预算指标批复与分解控制目标
(1)预算批复依据科学。根据以前年度的业务支出金额和本年度的业务工作计划为依据批复单位内部预算。
(2)预算批复的责任主体明确,预算管理机构对单位业务计划组织评审。
(3)选用恰当的预算批复方法,按照法定程序批复预算,保证单位预算批复合法合规。
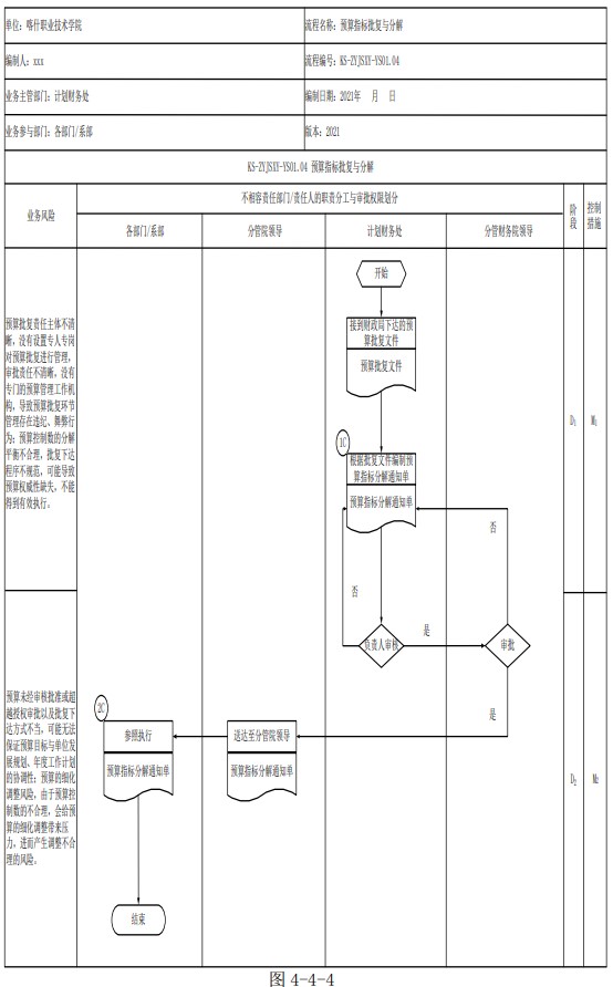
2.预算指标批复与分解流程
(1)流程描述
地区财政局下达预算批复文件,通知到计划财务处。会计根据预算批复文件编制预算指标分解通知单,报计划财务处负责人、分管财务院领导依次审核、审批,通过后,会计将预算指标分解通知单报送至各部门/系部的分管院领导处。各部门/系部参照预算指标分解通知单执行预算。
(2)流程图
4-4-5
(3)预算指标批复与分解业务流程控制表
4-4-6
终审:计财处

用户登录